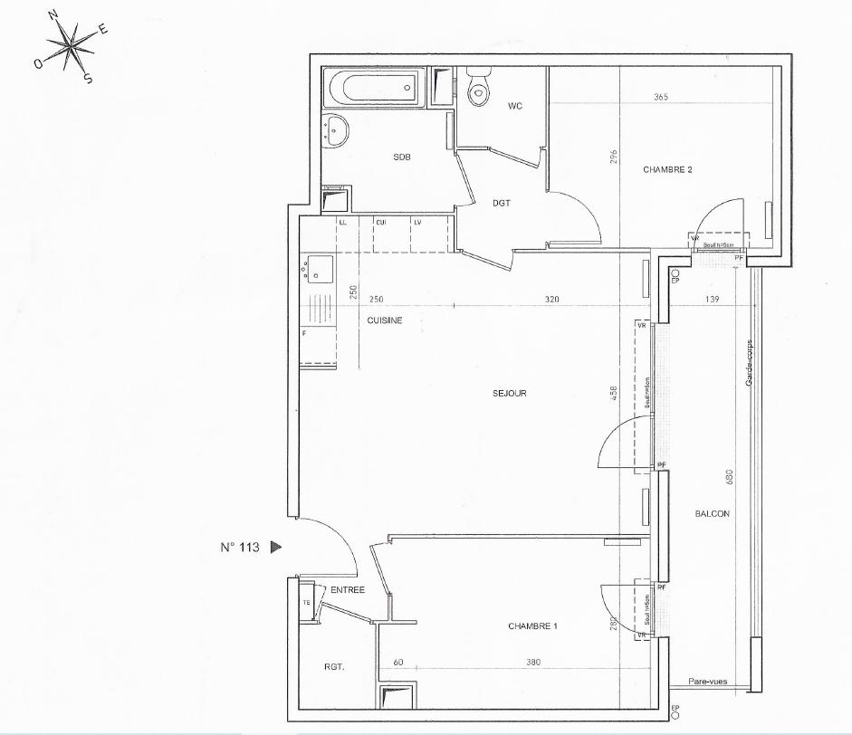
L'agence Côté Particuliers Aubervilliers vous présente cet appartement standing 2016 à 200 mètre de la station Tramway T1 Danton et à 550 mètre de la station de métro ligne 7 La Courneuve 8 mai 1945. Situé dans une résidence fermée, l'appartement se treouve au 1er étage sans vis-à -vis orienté sud-est. Il se distribue de la façon suivante. une entrée donnant sur un séjour avec cuisine américaine, deux chambres, un cellier, une salle de bain et des wc séparés. Une place de parking au sous-sol complète ce bien.


* FAI : Frais d'agence inclus
* CC : Charges Comprises
* HC : Hors charges